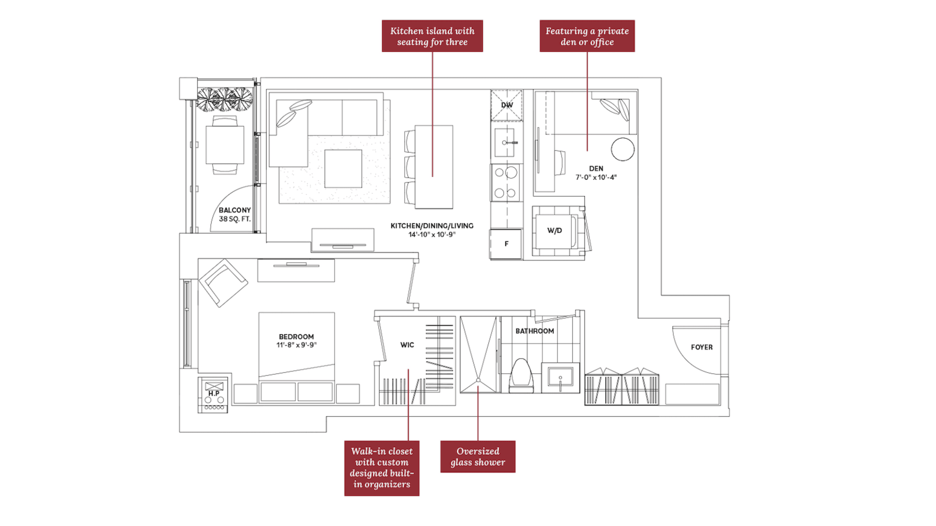
Balance productivity and play in the Blush, which offers a private den and an expansive kitchen island with seating for three—ideal for casual mornings or creative brainstorms. The apartment is rounded out by a spacious bedroom with a custom-organized walk-in closet and a bathroom with a spa-inspired oversized glass shower.

